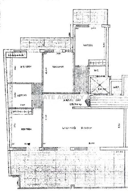
Αθήνα - Νότια Προάστια - Καλλιθέα πωλείται Ρετιρέ 115τ.μ. 6ος όροφος κατασκευής 1981 . Καλλιθέα, διαμέρισμα 115 τ.μ., 6ου ορόφου, ρετιρέ, απεριόριστη θέα, διαμπερές, 3 κρεβ/ρες, μπάνιο, WC, πάρκιν πιλοτής, αποθήκη 20 τμ, τζάκι, πόρτα ασφαλείας , πατωματα μαρμαρο –ξυλο .Η θέρμανσή του είναι κεντρική με Πετρέλαιο ,ηλιακό θερμοσίφωνα , διαθέτει αποθηκευτικό χώρο ,πόρτα Ασφαλείας . Τιμή (260000€)
Κωδ.ακινήτου 200635
ESTATE AGENCY A.S. Λ.ΠΑΛΑΙΟΠΑΝΑΓΙΑΣ 13 ,Τηλέφωνο Γραφείου: 2111982897




















